Rosewood dan Pinewood Cluster Terbaru Summarecon Bogor
![]() |
| Rosewood Summarecon Bogor |
Rosewood dan Pinewood adalah cluster terbaru Summarecon Bogor yang sudah ditunggu-tunggu oleh banyak orang. Terdapat dua cluster yang akan dirilis sekaligus.
Cluster Pinewood terdiri dari rumah 2 lantai ukuran 7x16 dan 9x16 dijual dengan harga mulai dari 1.5M-an.
Cluster Rosewood Golf Residence terdiri dari rumah 3 lantai ukuran 10x18 dan 12x18 dijual dengan harga mulai dari 3.1M-an.
Selain rumah, cluster Rosewood juga tersedia kavling bangun mandiri dengan tipe 12x20, 12x25, 14x30, 20x30, dan 25x40. Kavling dijual dengan harga mulai dari 2.1M-an.
Lokasi Summarecon Bogor
Summarecon Bogor berlokasi di Sukaraja Bogor dengan luas lahan 500 hektar dan hanya akan dibangun 30% saja, sisanya penghijauan dan fasilitas.
Summarecon Bogor memiliki akses tol langsung dari dan ke Jakarta yaitu pintu tol baru Bogor Selatan di KM 42.
![]() |
| Lokasi rosewood dan pinewood summarecon bogor |
![]() |
| Masterplan Summarecon Bogor |
Pinewood merupakan cluster full rumah sementara Rosewood terdapat rumah dan kavling yang dipasarkan.
Untuk semua rumah terdapat dua pilihan unit yaitu deluxe dan premium, yang mana perbedaannya terletak pada luas bangunan dan jumlah kamar, deluxe bangunan lebih kecil, premium bangunan lebih besar dan tentunya juga berbeda harganya.
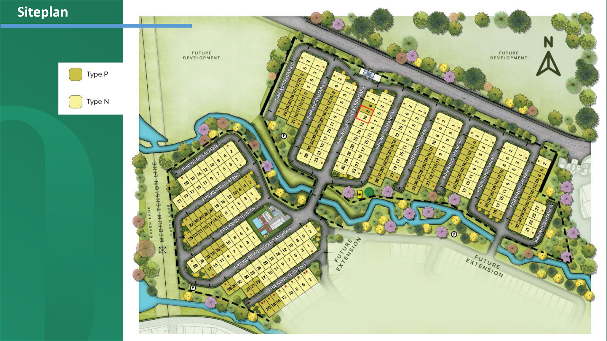
Cluster Pinewood Residence
Tipe P (7x16) Deluxe
- Luas Tanah 112m2.
- Luas Bangunan 89m2.
- Bangunan 2 lantai.
- 2 Kamar Tidur - 2 Kamar Mandi - 1 Carport.
- Luas Tanah 112m2.
- Luas Bangunan 128m2.
- Bangunan 2 lantai.
- 3+1 Kamar Tidur - 3+1 Kamar Mandi - 1 Carport.
![]() |
| Denah layout pinewood summarecon bogor tipe 7x16 premium |
Tipe N (9x16) Deluxe
Tipe N (9x16) Premium
- Luas Tanah 144m2.
- Luas Bangunan 109m2.
- Bangunan 2 lantai.
- 2 Kamar Tidur - 3 Kamar Mandi - 2 Carport.
![]() |
| Denah layout pinewood summarecon bogor tipe 9x16 deluxe |
- Luas Tanah 144m2.
- Luas Bangunan 159m2.
- Bangunan 2 lantai.
- 3+1 Kamar Tidur - 3+1 Kamar Mandi - 2 Carport.
![]() |
| Denah layout pinewood summarecon bogor tipe 9x16 premium |
Rosewood Golf Residence merupakan cluster premium menempel dengan lapangan golf, sehingga akan terdapat rumah dan kavling view golf langsung.
Tipe R (10x18) Deluxe
- Luas Tanah 180m2.
- Luas Bangunan 194m2.
- Bangunan 2 lantai.
- 4+1 Kamar Tidur - 3+1 Kamar Mandi - 2 Carport.
- Luas Tanah 180m2.
- Luas Bangunan 226m2.
- Bangunan 3 lantai.
- 4+1 Kamar Tidur - 3+1 Kamar Mandi - 2 Carport.
![]() |
| Denah layout rosewood summarecon bogor tipe 10x18 premium |
Kavling Non Golf View
- Luas mulai 240 m2
Kavling Golf View
- Luas mulai 420 m2.
Kavling Tipe Special Golf View Hanya 2 Unit
- 25x40 (1,000 m2) penjualan akan dilelang.
![]() |
| Kavling rosewood summarecon bogor |
Metode Pembayaran
- Tunai Keras.
- Tunai Bertahap.
- KPR Express.
- KPR DP Cicil.
Fasilitas Rosewood dan Pinewood Summarecon Bogor
Rosewood dan Pinewood Summarecon Bogor menyediakan clubhouse premium, multifunction house, taman bermain anak dan kolam berenang. Untuk Rosewood sendiri posisi cluster bersebelahan dengan lapangan golf sehingga memiliki view ke golf dan juga view ke city arah Jakarta dikarenakan lahan clusternya cukup tinggi.
![]() |
| Fasilitas Mini Club rosewood summarecon bogor |
Spesifikasi Bangunan Rosewood dan Pinewood Summarecon Bogor
Mekanisme Pembelian Rosewood dan Pinewood Summarecon Bogor
- Pilih Unit Available.
- Booking Fee.
- Copy KTP, NPWP
Hubungi Marketing

























Tidak ada komentar